پالایۀ هشکار
مقدمات وسایلی
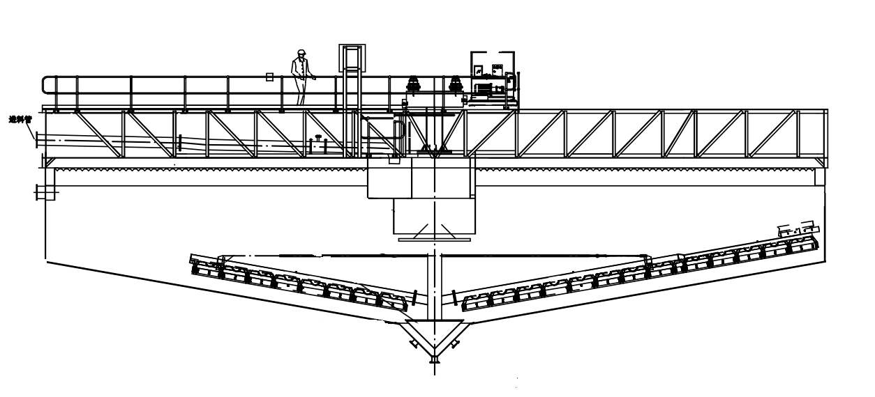
GNZ سریال مرکزی راننده یک سری جدید از تجهیزات تمرکز پیوسته و توضیحات مستقل است که توسط مرکز R&D ما طراحی شده است بر اساس سری و نیازهای فنی GB/T10605-2003 و JB/T 11004-2010.
این مجموعه از محصولات طراحی مولدی رو قبول میکنه، کل ماشین شامل ماژول هایی مثل بدن تانک، پشتیبانی، دریافت، فرار کردن بر اساس نیازهای شما میتونیم دو نوع فراهم کنیم ضربه دهنده ي هيدروليک دريايي مرکزي ضربه زده ميشه ساختار و روش کنترل جدید برای شتاب سازی سازی ماده، بهبود ظرفیت پردازش در هر منطقه و کاهش ضربه ی پردازش بیشتر است.
ترکیب تئوری طبیعی و ایده طراحی ضخیم کننده ی کارایی بالا، ظرفیت پردازش هر واحد بزرگ است، عوارض اثرات خوبی است و عملیات فوق العاده می تواند به طور راحتی به کار برد.
۱) در مرکز بافر عمیق قطعاً تغذیه ی عمق قطعاً زمانی که دریافت می شود، هیچ تاثیری ندارد؛
) مرکز هیدرولیک درایو با عملکرد حفاظت از حفاظت اتوماتیک تروس اضافه کنید
۳ ) تانک تانک جمع آوری در مرکز عوض شده تا دو بار محصول کنیم، تمرکز بالاتر و پایدار تر است.
۴) ساختار منطقی اصلاح سلطنتی بیشتر برای بهبود فعالیت تمرکز می باشد.
۵) رشد خارجی اطراف طراحی یک منطقه ی موثر بیشتری و فیلتری به شفافتر می سازد.
۶) راه اضافه ی چند امتیازی فلوکولانت
۷) پشتیبانی وظیفه سنگین برای طولانی و عملیات بدون دردسر پذیرفته می شود.

GNZ ضربان دهنده عمدتاً برای تمرکز تمرکز، شستشو شستن و آب در عملیات خجالتی استفاده میشه تمرکز و عوض کردن تعقيب و همچنين به طور گسترده اي در تمرکز و پاکسازي سطح زغال زغال، فولاد، مواد شيميايي استفاده ميشه مواد ساختمان، سيمان، درمان فاضلاب و بقيه صنايع.
قواعد نامگذاری مدل GNZ دریایی مرکزی :

